Eladó Ipari ingatlan Komlón

1194 Nyomtatás Ajánlás Facebook

Komlón ipari ingatlan eladó!

Az ingatlan 4507 m2-es telken található.
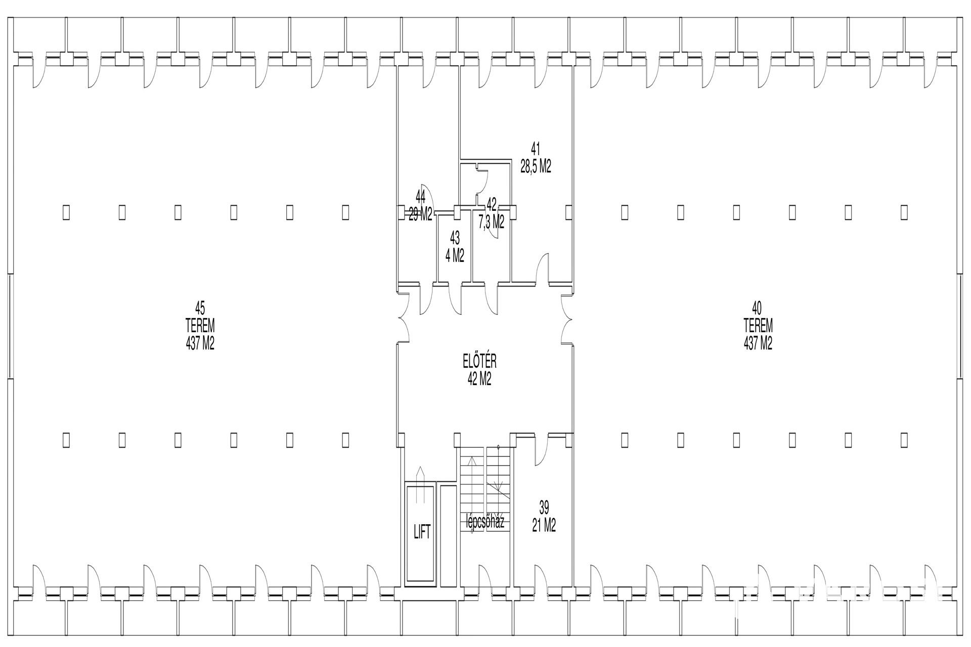
Az épület szintenként 1000 m2 + alagsor és tetőtér, melegét távhő biztosítja radiátorokon keresztüli hőleadással.
A szinteket belső lépcsőház illetve lift is összeköti.
Az ingatlan jó szerkezeti állapotban van, nyílászárók jelentős részét pár évvel ezelőtt cserélték.

Az ingatlan nagyméretű tehergépjárművel is könnyen megközelíthető.

Az ingatlan számtalan lehetőséget biztosít. A csatolt alaprajzok tájékoztató jellegűek

Az ingatlan vételára: 727.610.000 Ft
A vételár bruttó ár, mely 27%-os ÁFA-t tartalmaz.

Birtokbaadás rövid időn belül megoldható.

FONTOS: tulajdonosi kérésre az ingatlan megtekintése csak és kizárólag előre egyeztetett időpontban oldható meg az ingatlanirodán keresztül!

Bővebb információkért illetve megtekintés végett keressen bizalommal:
Faragó István József
Vagyonértékelő és Ingatlanértékesítő – Városi Ingatlaniroda Pécs
Telefon: +36302096747

Faragó István József

Faragó István József

1 éve a Városi Ingatlaniroda tagja
Ingatlanértékesítő
Magyarszék
+36 (30) 209 6747
Észrevétel a hirdetéssel kapcsolatban
Egy ingatlanos naplója