Eladó ipari ingatlan – nagy terekkel és saját kúttal!

4926 Nyomtatás Ajánlás Facebook

Eladó ipari ingatlan - nagy terekkel és saját kúttal!

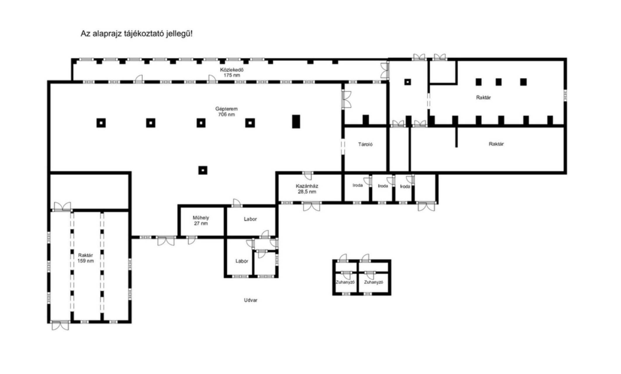
Békéscsabán, frekventált, belterületi, kereskedelmi udvarban található a 2157 m² hasznos alapterületű ipari ingatlan, amely korábban tollgyárként működött. A tégla falazatú ingatlan jó szerkezeti állapotban van, hatalmas terei és 7-9 méteres belmagassága számos ipari, logisztikai vagy gyártó tevékenységre alkalmassá teszi.
További jellemzők:
- 96 m mély fúrt kút, metánmentesítéssel – ipari vízellátásra kiváló,
- térburkolt udvar, teherautóval is könnyen megközelíthető,
- tágas, jól tagolható belső terek,
- 1452 m²-es telekméret,
- Gksz besorolású terület, max. magasság 10,5 m lehet.
Javasolt hasznosítási lehetőségek:
- gyártóüzem műhelyekkel,
- raktározó, logisztikai központ,
- feldolgozóipari telephely,
- bérbeadásra is kiváló befektetés.

Az ingatlan elhelyezkedése ideális olyan vállalkozások számára, akik központi helyet keresnek Békéscsabán belül, könnyű megközelíthetőséggel és jó infrastruktúrával.
További információkért, megtekintésért kérem, keressen elérhetőségeimen!
Román nyelvű információ:
Kovács Tibor +36-30-925-5583

Tóth Brigitta
PRÉMIUM

Tóth Brigitta

5 éve a Városi Ingatlaniroda tagja
Ingatlanértékesítő
Békéscsaba
+36 (30) 956 3560
Észrevétel a hirdetéssel kapcsolatban
Egy ingatlanos naplója