Energiahatékony családi ház eladó Győr–Újvárosban

1421 Nyomtatás Ajánlás Facebook

Győr–Újváros egyik nyugodt, átmenő forgalomtól mentes utcájában kínálunk megvételre egy kétszintes, kiváló állapotú családi házat. A 4 szobás, 2 fürdőszobás otthon praktikus elrendezéssel és korszerű műszaki tartalommal biztosít kényelmes életteret akár nagyobb család számára is.
Az ingatlan 118,62 m² hasznos alapterületű, teljes fűtött nettó alapterülete 131,97 m², és egy 201 m²-es saroktelken helyezkedik el. A tetőtér kialakítása praktikus, a 95 cm-es parapetfalak miatt a felső szint jól kihasználható.
Az ingatlan bevásárlóközpontok közelében, mégis csendes, rendezett lakókörnyezetben helyezkedik el. A 2022-ben korszerűsített energetikai rendszernek köszönhetően a ház alacsony rezsivel fenntartható, miközben minden fontos szolgáltatás rövid távolságon belül elérhető.

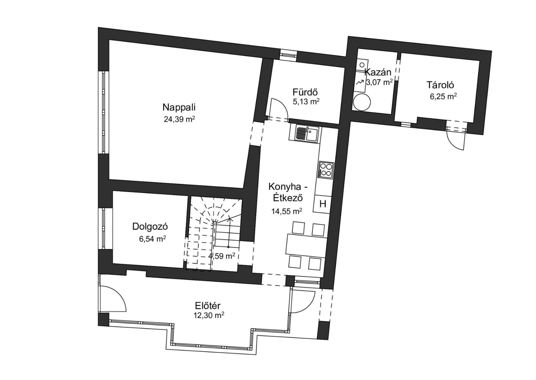
Elrendezés
Földszint:
• tágas nappali
• konyha–étkező
• dolgozószoba
• fürdőszoba
• előtér és lépcsőtér tárolóval
Emelet:
• két kényelmes méretű hálószoba
• galéria dolgozórésszel
• fürdőszoba (mindkét hálószobából megközelíthető)
A szintek között minőségi kivitelezésű kőrisfa lépcső biztosít kapcsolatot.

Energetika és gépészet
A ház 2022-ben jelentős energetikai korszerűsítésen esett át:
• 5 kW teljesítményű napelemes rendszer (15 panel) – szaldó elszámolással
• 3 db hűtő–fűtő klímaberendezés
• kondenzációs gázkazán
• lapradiátoros hőleadás
Villamos hálózat: 3×20 A
Energetikai minősítés: CC
A napelemes rendszernek köszönhetően az ingatlan rendkívül kedvező fenntartási költséggel üzemeltethető.

Épület műszaki jellemzői
• Porotherm és tömör tégla falazat
• Ytong téglával falazott felső szint
• monolit vasbeton födém
• Bramac betoncserép tetőhéjazat
• 5 cm homlokzati hőszigetelés
• 15 cm tetőszigetelés
A padlástér járható, tárolásra alkalmas.

Udvar és parkolás
A rendezett udvarban található:
• távirányításos úszókapu
• fedett autóbeálló polikarbonát tetővel
• külön melléképület (9,3 m²) a gépészeti berendezések számára

Nyílászárók és biztonság
• minőségi fa nyílászárók
• alumínium redőnyök
• 2 rétegű üvegezés
• dupla biztonsági üvegezésű bejárati ajtó
• kiépített riasztórendszer

Egyéb információk
A beépített bútorok és gépek az ingatlan részét képezik (konyhabútor, tűzhely, szagelszívó, kazán).
A további berendezések megegyezés tárgyát képezhetik.

Irányár: 99,90 millió Ft
Az ingatlan megfelel a 3%-os OSP hitel feltételeinek.
Igény esetén díjmentes hitelügyintézésben és kedvező ügyvédi háttér biztosításában is segítünk.

Two-storey family house for sale in a quiet area of Győr–Újváros

A well-maintained two-storey family home is offered for sale on a quiet street with no through traffic in the Újváros district of Győr.

The property features 4 rooms and 2 bathrooms and offers a comfortable living environment thanks to its practical layout and modern technical features, making it an ideal home even for a larger family.

The house has a usable living area of 118.62 m², with a total heated net floor area of 131.97 m², and is situated on a 201 m² corner plot.
The attic level is efficiently designed; due to the 95 cm parapet walls, the upper floor is well utilized and provides comfortable living space.

The property is located close to shopping centers, yet in a quiet and well-maintained residential neighborhood.
Thanks to the energy system modernization completed in 2022, the house can be maintained with low utility costs, while all essential services are easily accessible within a short distance.

Layout

Ground floor
spacious living room
kitchen with dining area
study / home office
bathroom
entrance hall and staircase with storage space

Upper floor

two comfortable bedrooms
gallery with workspace
bathroom (accessible from both bedrooms)

The two levels are connected by a high-quality ash wood staircase.

Energy efficiency and mechanical systems

The house underwent a major energy upgrade in 2022, including:
5 kW solar panel system (15 panels) with net metering
3 heating and cooling air-conditioning units
condensing gas boiler
panel radiators for heat distribution
Electrical capacity: 3 × 20 A
Energy performance rating: CC
Thanks to the solar panel system, the property benefits from very low operating costs.

Technical features of the building

Porotherm and solid brick masonry
upper floor built with Ytong blocks
monolithic reinforced concrete slab between floors
Bramac concrete roof tiles
5 cm external thermal insulation
15 cm roof insulation
The attic space is walkable and suitable for storage.

Yard and parking

The tidy yard includes:
remote-controlled sliding gate
covered carport with polycarbonate roof
separate outbuilding (9.3 m²) housing the mechanical equipment
Windows, doors and security
high-quality wooden exterior windows and doors
aluminium shutters
double-glazed windows
double safety-glazed entrance door
installed alarm system

Additional information

Built-in furniture and appliances are included in the purchase price (kitchen cabinets, stove, extractor hood, boiler).
Other furnishings may be subject to separate agreement.

Guide price: HUF 99.90 million

The property meets the requirements for the 3% OSP loan program.
Upon request, we can assist with free mortgage consultation and legal services at a favorable rate.

Márkus Zsuzsanna

Márkus Zsuzsanna

Ingatlanértékesítő
Győr
+36 (30) 959 9362
Észrevétel a hirdetéssel kapcsolatban
Egy ingatlanos naplója