Nagy családi ház új lakóparkban - 3

14355 Nyomtatás Ajánlás Facebook

Kedves Érdeklődő!

Építkezzen új építésű lakóparkban Szeged belvárosától 10 percnyi távolságra és vásárolja meg álmai házat megbízható szegedi kivitelező cégtől! Költözzön Deszkre a Szőlőskert Lakóparkba!

A feltüntetett vételár kulcsrakész állapotra vonatkozó bruttó ár és a telek árát is tartalmazza!

Alap kulcsrakész műszaki tartalom:
- 30 cm kerámia csiszolt tégla falazat, 10 cm grafitos hőszigeteléssel, fehér nemesvakolattal
- 3 rétegű 6 légkamrás műanyag nyílászárók
- szeglemezes, rácsos szerkezetű szerelt födém 30 cm hőszigeteléssel
- beton cserépfedés választható alapszínben
- gépi vakolású belső falfelületek glettelve és színre festve
- 24 kW-os BAXI kondenzációs kazán padlófűtéssel
- klíma előkészítés egy választott helyre
- hidegburkolatok 8000 ft/m2 árszintig, melegburkolatok 7500 ft/m2 árszintig
- szaniterek tetszés szerint 550.000 Ft-ig
- villanyszerelés kapcsolókkal és dugaljakkal, lámpatestek nélkül
- elektromos terv szerinti napelem előkészítés az inverterhez
- fehér dekor beltéri ajtók

Műszaki tartalom növelésre egyedi megegyezés alapján van lehetőség (hőszivattyús fűtés, napelem, mennyezet hűtés-fűtés, okos otthon rendszer, központi szellőztetés stb.), illetve további egyedi igények megvalósítására is van lehetőség!

Amennyiben rendelkezik már telekkel vagy saját elképzelései alapján terveztetné és építtetné meg álmai otthonát, abban is tudok segíteni! :)

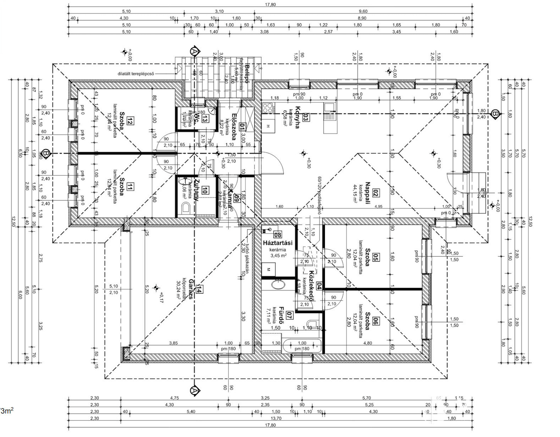
A hirdetésben szereplő ház 160 m2 alapterületű, amerikai konyhás nappali + 4 hálószobás elrendezésű 2 fürdőszobával és dupla garázzsal. Igénybe vehető rá minden fajta állami támogatás és CSOK+ hitel, illetve ÁFA visszaigénylés is!

További információért és időpont egyeztetéssel kapcsolatban forduljon hozzám bizalommal!

Elérhetőség:
Német Máté
+36-30/ 975-8764
nemet.mate@ving.hu

Német Máté
PRÉMIUM

Német Máté

8 éve a Városi Ingatlaniroda tagja
Karrierigazgató, Ingatlanértékesítő
Szeged
+36 (30) 975 8764
Észrevétel a hirdetéssel kapcsolatban
Egy ingatlanos naplója