Prémium minőségű, újonnan épülő ikerház a Panka közben

122 Nyomtatás Ajánlás Facebook

Megvásárlásra kínálok a X. Került Újhegyi részen egy korszerű technológiákkal, prémium kvalitású gépészeti megoldások és kiváló minőségű anyagok felhasználásával épülő ikerházat.

Kőbánya egyik legnyugodtabb részén, egy csendes mellékutcában, kertvárosias környezetben található.

Több generációs otthon lehetőségét rejti magában.

Előnyei:
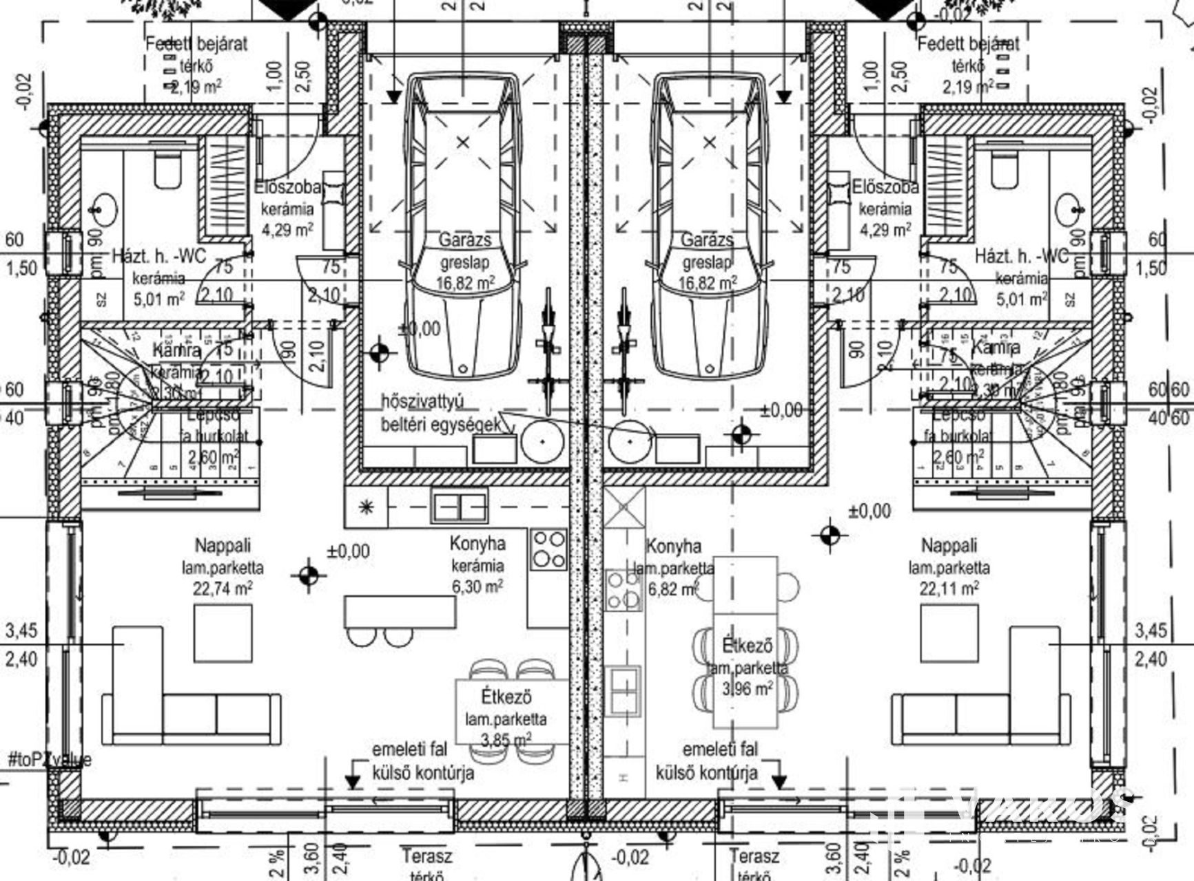
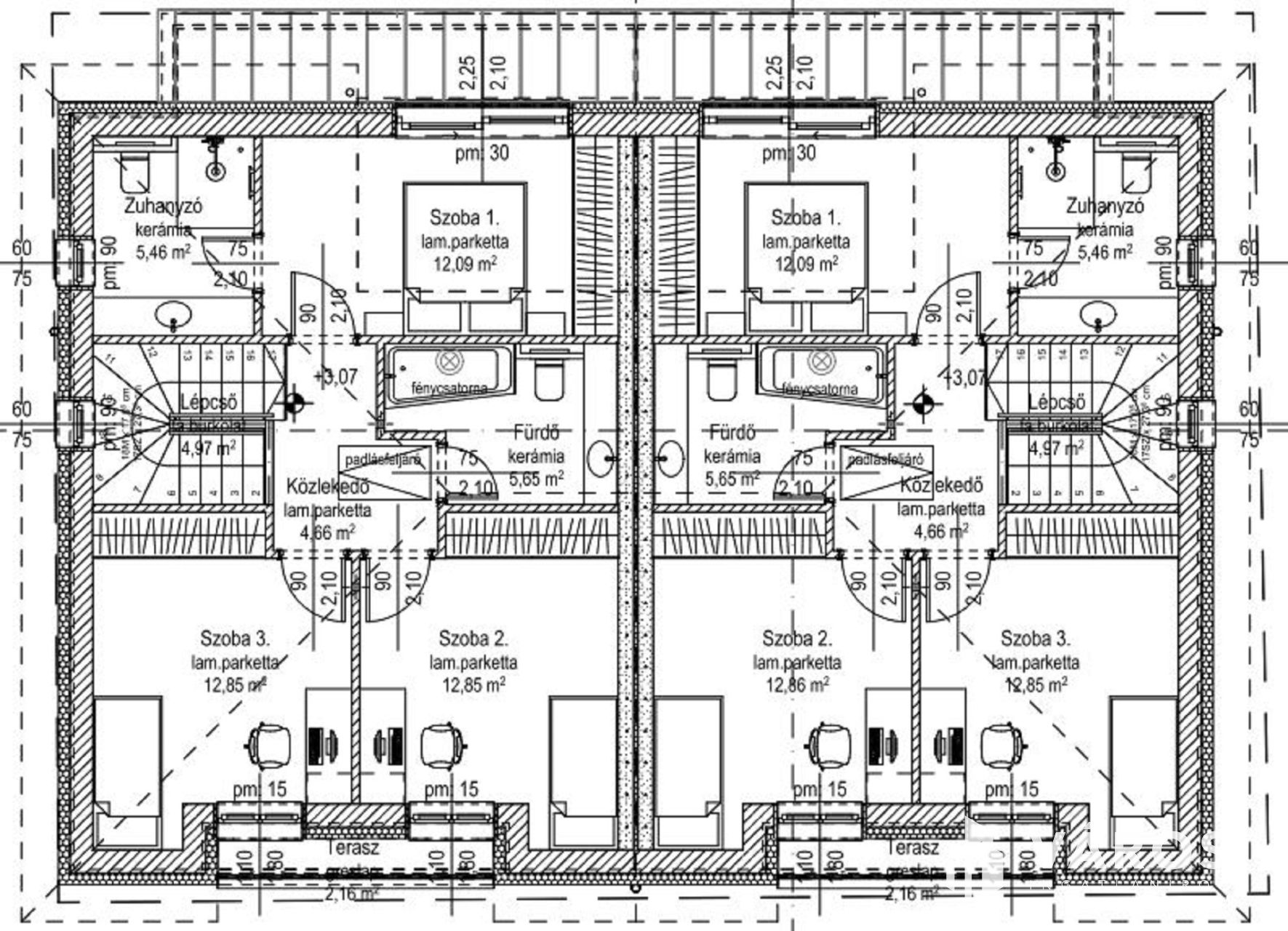
Lakóegységenként: 122 m² lakótér: amerikai konyhás nappali+étkező, 3 szoba, 3 fürdő
– 240 m² saját kert
– temperált garázs minden házban
– hőszivattyús rendszer
– emeleten mennyezeti hűtés-fűtés
– padlófűtés minden helyiségben
– fan-coil a nappaliban
– motoros redőnyök, prémium nyílászárók
– okos otthon rendszer
– magas minőségű kivitelezés
Az iker lakások teljesen különálló épületek, nincs közös faluk, így valódi családi ház érzetet biztosítanak.
Egyes felülnézeti képeken látszik is, hogy szigeteléssel vannak elválasztva az egyébként is hangszigetelő téglából épült falak a felező vonalon.

Infrastruktúra:
- Jó közlekedés 28, 28a, és 37-es villamossal közvetlenül elérhető a Belváros.
- Kőbánya-Kispest is elérhető 18 perc alatt 68/268 járatokkal. Onnantól pedig a 3-as metróval kényelmesen és gyorsan elérhető a város bármely pontja.
- Óvoda 800 méterre, általános iskola 400 méterre, valamint középiskola 900 méterre található, mindegyik akár gyalog is megközelíthető.

Fix 3%-os hitellel is vásárolható.
Hitelképességet bank-független szakértő hitelügyintéző kollégával tudjuk megállapítani.

Valamit saját ügyvéd segít lebonyolítani az adás-vételi procedúrát, megkönnyítve ezzel a leendő vásárló életét.

Az ikerházak várható átadása: 2026 IV. Negyedév

Keressen bizalommal, bármikor hívható vagyok, ha nem tudom felvenni, visszahívom.

Németh Szilvia

Németh Szilvia

Ingatlanértékesítő
Budapest
+36 (20) 372 8489
Észrevétel a hirdetéssel kapcsolatban
Egy ingatlanos naplója