Újonnan épülő prémium családi ház a Panka közben

278 Nyomtatás Ajánlás Facebook

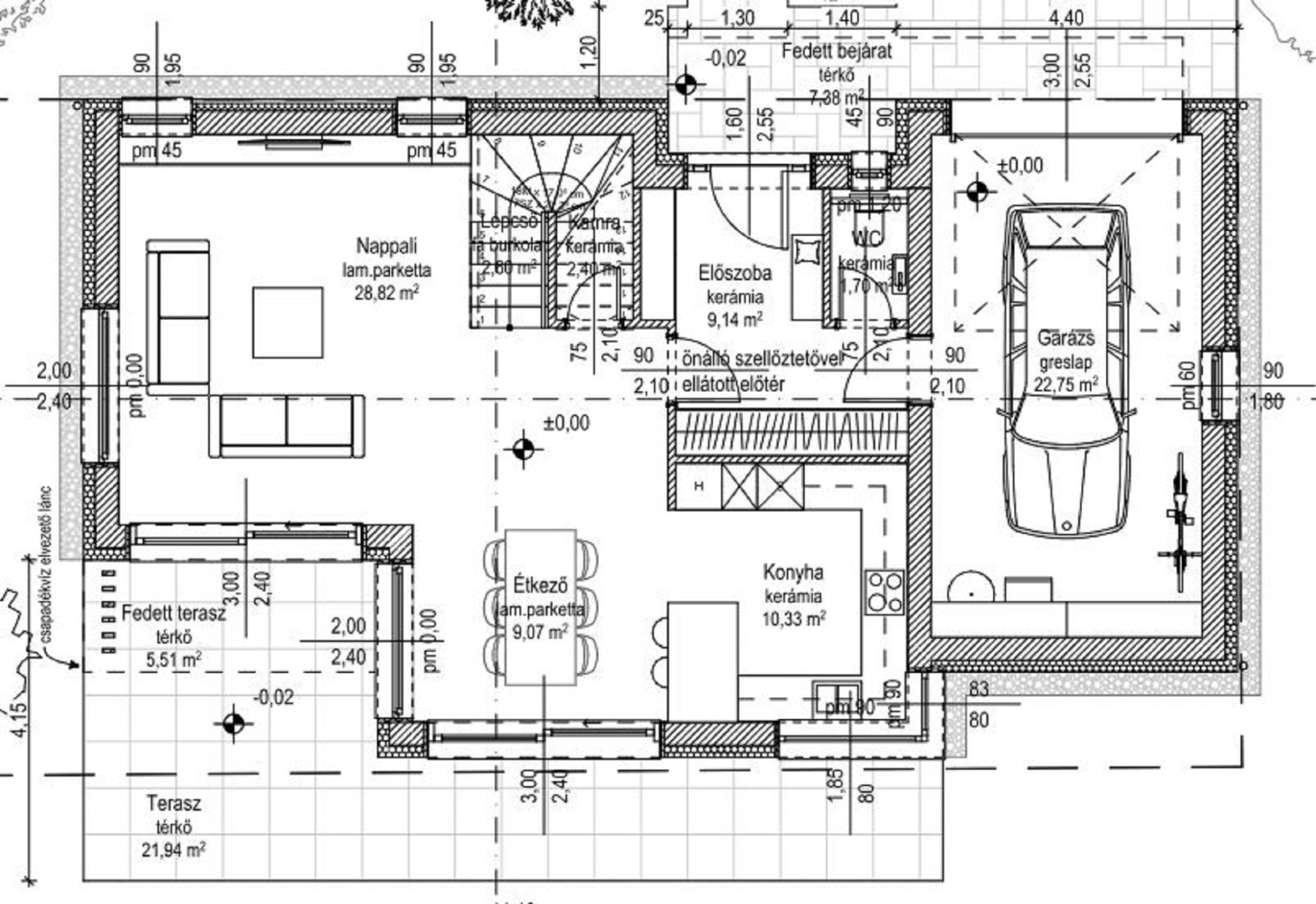
Megvásárlásra kínálok a X. Került Újhegyi részen egy korszerű technológiákkal, prémium kvalitású gépészeti megoldások és kiváló minőségű anyagok felhasználásával épülő családi házat.
Kőbánya egyik legnyugodtabb részén, egy csendes mellékutcában, kertvárosias környezetben található.
Tágas, világos terek, kényelmes elrendezés. Nagyobb családok számára is alkalmas ház.

Előnyei:
– 186 m² hasznos alapterület: Amerikai konyhás nappali+ étkező, 4 szoba, és 3 fürdőszoba és 2 külön wc.
– 240 m² saját kert
– temperált garázs házban
– hőszivattyús rendszer
– emeleten mennyezeti hűtés-fűtés
– padlófűtés minden helyiségben
– fan-coil a nappaliban
– motoros redőnyök, prémium nyílászárók
– okos otthon rendszer
– magas minőségű kivitelezés

Infrastruktúra:
Jó közlekedés 28, 28a, és 37-es villamossal közvetlenül elérhető a Belváros.
Kőbánya-Kispest is elérhető 18 perc alatt 68/268 járatokkal. Onnantól pedig a 3-as metróval kényelmesen és gyorsan elérhető a város bármely pontja.
Óvoda 800 méterre, általános iskola 400 méterre, valamint középiskola 900 méterre található, mindegyik akár gyalog is megközelíthető.

Fix 3%-os hitellel is vásárolható.
Hitelképességet bank-független szakértő hitelügyintéző kollégával tudjuk megállapítani.
Valamit saját ügyvéd segít lebonyolítani az adás-vételi procedúrát, megkönnyítve ezzel a leendő vásárló életét.

Keressen bizalommal, bármikor hívható vagyok, ha nem tudom felvenni, visszahívom.

Németh Szilvia

Németh Szilvia

Ingatlanértékesítő
Budapest
+36 (20) 372 8489
Észrevétel a hirdetéssel kapcsolatban
Egy ingatlanos naplója